1586 Ch. du Pays Brûlé
Varennes, QC J3X 1P7
$799,900
MLS#
15083291
Salles de bain:
1
Type:
Maison à étages
Superficie habitable:
0
Salles d'eau
1
Année de construction:
1957
Chambres à coucher:
3
Taille du lot:
8557 PC
Description

Coup de coeur assuré! Propriété au cachet unique offrant une intimité rare sans compromis sur la proximité des services. Boiseries chaleureuses et foyer au salon créant une ambiance incomparable. Terrain mature sans voisins immédiats avec grande galerie et allée 8+ véhicules incluant espace VR. 3 chambres avec possibilité d'une 4e, vaste boudoir polyvalent. Sous-sol avec salle familiale, poêle au propane, atelier et accès extérieur. Potentiel d'un immense atelier au-dessus du garage. Un véritable havre de paix!

Inclusion

Cuisinière au propane, stores, luminaires, système d'alarme relié, aspirateur central et accessoires, ouvre porte de garage avec 2 manettes, piscine hors terre, poêle au propane au sous-sol, étagères au garage, rangement dans la chambre principale, câbles pour accueillir des batteries de secours EcoFlow branchées via 2 panneaux d'urgence en cas de panne, ventilateur tel quel, borne électrique.

Exclusion

Lave-vaisselle, spa.

Evaluation municipale du terrain

$83,500

Evaluation municipale du batiment

$299,500

Plus d'information

Une propriété qui se démarque... dès les premières secondes.

Offrez-vous un véritable havre de paix où le charme, l'espace et la tranquillité se rencontrent, sans compromis sur la proximité des services. Ici, vous profitez du meilleur des deux mondes : une intimité rare... à quelques minutes de tout.

Dès l'entrée, le coup de coeur opère. Les boiseries riches et chaleureuses enveloppent chaque pièce d'une ambiance accueillante et authentique, tandis que le foyer au salon devient le point central de moments inoubliables en famille ou entre amis.

À l'extérieur, le décor est tout simplement enchanteur : un vaste terrain bordé d'arbres matures, incluant érables et pommiers, sans voisins immédiats pour une quiétude absolue. La grande galerie prolonge naturellement l'espace de vie vers l'extérieur, parfaite pour savourer l'été en toute tranquillité. L'immense allée pouvant accueillir plus de 8 véhicules, incluant un espace pour VR, ajoute une valeur exceptionnelle et rare.

Pensée pour s'adapter à votre réalité, la propriété offre 3 chambres avec la possibilité d'en créer une 4e, notamment en subdivisant la chambre principale. À l'étage, un vaste boudoir polyvalent ouvre la porte à toutes vos idées : bureau, salle familiale, gym ou espace de jeux.

Le sous-sol complète parfaitement l'ensemble avec une grande salle familiale réchauffée par un poêle au propane, un espace atelier ou rangement généreux, un garde-robe en cèdre, ainsi qu'un accès direct à la cour -- un avantage aussi pratique que recherché.

Et ce n'est pas tout : le potentiel d'un immense atelier au-dessus du garage séduira assurément les passionnés, les créatifs ou les travailleurs autonomes en quête d'un espace distinct et inspirant.

Le tout, idéalement situé à proximité des commerces, des services, du transport en commun et avec un accès rapide à la route 132.

Une propriété unique, polyvalente et pleine de caractère... prête à accueillir votre prochaine histoire

Virtual Tour
Calculatrice hypothécaire
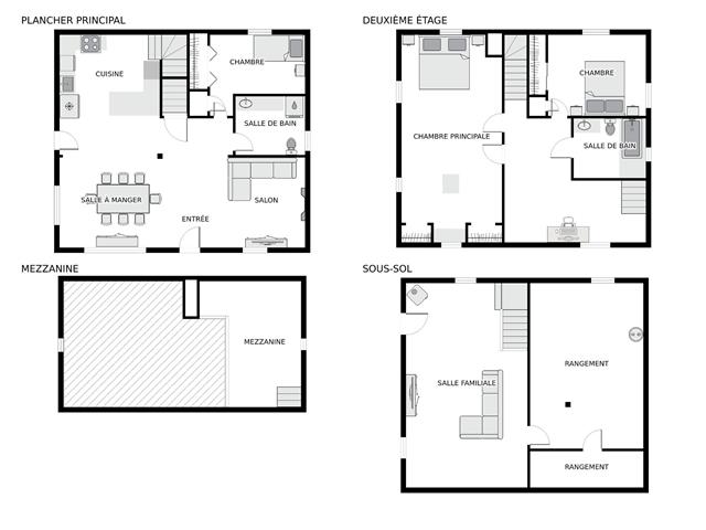
Détails des pièces
Pièce Dimensions Niveau Sol
Salon 13.3 x 11.0 P Rez-de-chaussée Bois
Salle à manger 14.9 x 11.8 P Rez-de-chaussée Bois
Cuisine 14.8 x 12.1 P Rez-de-chaussée Céramique
Chambre à coucher 11.11 x 10.1 P Rez-de-chaussée Bois
Salle d'eau 8.6 x 7.3 P Rez-de-chaussée Céramique
Chambre à coucher principale 12.1 x 26.11 P 2ième étage Bois
Chambre à coucher 11.11 x 10.10 P 2ième étage Bois
Boudoir 15.5 x 17.3 P 2ième étage Bois
Salle de bains 7.1 x 7.4 P 2ième étage Céramique
Mezzanine 7.1 x 9.3 P 3ième étage Plancher flottant
Salle familiale 15.2 x 23.10 P Sous-sol Plancher flottant
Atelier 14.0 x 20.11 P Sous-sol Béton
Rangement 13.6 x 4.10 P Sous-sol Bois
Bâtiment
Type Maison à étages
Style Détaché (Isolé)
Dimensions 28.6x32.4 P
La Taille Du Lot 8557 PC
Dépenses
Taxes municipales (2026) $ 3385 / année
Taxes scolaires (2025) $ 315 / année
Caractéristiques
Sous-sol 6 pieds et plus, Totalement aménagé
Zonage Agricole
Mode de chauffage Air soufflé, Plinthes électriques
Fenêtres Aluminium, PVC
Allée Asphalte, Double largeur ou plus
Stationnement Au garage, Extérieur
Particularités Aucun voisin à l'arrière
Proximité Autoroute/Voie rapide, Cegep, École primaire, École secondaire, Garderie/CPE, Parc-espace vert, Piste cyclable, Ski de fond, Transport en commun
Toiture Bardeaux d'asphalte
Équipement disponible Borne de recharge - niveau 2, Climatiseur central, Cour privée, Installation aspirateur central, Porte de garage électrique, Système d'alarme
Type de fenêtre Coulissante, Manivelle
Garage Détaché
Énergie pour le chauffage Électricité
Foyers-poêles Foyer au bois, Poêle au gaz
Piscine Hors-terre
Armoires Mélamine
Approvisionnement en eau Municipalité
Topographie Plat
Système d'égouts Système BIONEST
Aménagement du terrain Terrain/cour bordé de haies
Revêtements Vinyle
Partager la propriété
Carte

Chargement des cartes...

Vue de la rue

Chargement de la vue de la rue...