1586 Ch. du Pays Brûlé
Varennes, QC J3X 1P7
$855,000
MLS#
21164638
Bathrooms:
1
Type:
Two or more storey
Livable Area:
0
Powder rooms
1
Year Built:
1957
Bedrooms:
3
Lot Area:
8557 PC
Description

Charmante propriété offrant beaucoup de cachet et une ambiance chaleureuse grâce à ses boiseries, son foyer au salon et ses espaces polyvalents. Elle propose 3 chambres à coucher avec possibilité d'en aménager une 4e et un grand boudoir pouvant servir de bureau, salle familiale, d'entraînement ou de jeux. Le sous-sol comprend une grande salle familiale avec poêle au propane, une vaste salle de rangement/atelier, un garde-robe en cèdre ainsi qu'un accès extérieur à la cour. Possibilité d'un immense atelier au 2e étage du garage. Grande galerie extérieure et allée de stationnement pouvant accueillir 8+ véhicules ou VR.

Included

Cuisinière au propane, stores, luminaires, système d'alarme relié, aspirateur central et accessoires, ouvre porte de garage avec 2 manettes, piscine hors terre, poêle au propane au sous-sol, étagères au garage, rangement dans la chambre principale, câbles pour accueillir des batteries de secours EcoFlow branchées via 2 panneaux d'urgence en cas de panne, ventilateur tel quel, borne électrique.

Excluded

Lave-vaisselle, spa.

Municipal land valuation

$83,500

Municipal building valuation

$299,500

Virtual Tour
Mortgage Calculator
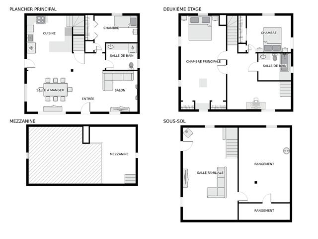
Room Details
Room Dimensions Level Flooring
Living room 13.3 x 11.0 P Ground Floor Wood
Dining room 14.9 x 11.8 P Ground Floor Wood
Kitchen 14.8 x 12.1 P Ground Floor Ceramic tiles
Bedroom 11.11 x 10.1 P Ground Floor Wood
Washroom 8.6 x 7.3 P Ground Floor Ceramic tiles
Primary bedroom 12.1 x 26.11 P 2nd Floor Wood
Bedroom 11.11 x 10.10 P 2nd Floor Wood
Den 15.5 x 17.3 P 2nd Floor Wood
Bathroom 7.1 x 7.4 P 2nd Floor Ceramic tiles
Mezzanine 7.1 x 9.3 P 3rd Floor Floating floor
Family room 15.2 x 23.10 P Basement Floating floor
Workshop 14.0 x 20.11 P Basement Concrete
Storage 13.6 x 4.10 P Basement Wood
Building
Type Two or more storey
Style Detached
Dimensions 28.6x32.4 P
Lot Size 8557 PC
Expenses
Municipal Taxes (2025) $ 3340 / year
School taxes (2025) $ 315 / year
Characteristics
Basement 6 feet and over, Finished basement
Pool Above-ground
Zoning Agricultural
Heating system Air circulation, Electric baseboard units
Equipment available Alarm system, Central air conditioning, Central vacuum cleaner system installation, Electric garage door, Level 2 charging station, Other, Private yard
Windows Aluminum, PVC
Driveway Asphalt, Double width or more
Roofing Asphalt shingles
Proximity Bicycle path, Cegep, Cross-country skiing, Daycare centre, Elementary school, High school, Highway, Park - green area, Public transport
Sewage system BIONEST system
Window type Crank handle, Sliding
Garage Detached
Heating energy Electricity
Topography Flat
Parking Garage, Outdoor
Hearth stove Gas stove, Wood fireplace
Landscaping Land / Yard lined with hedges
Cupboard Melamine
Water supply Municipality
Distinctive features No neighbours in the back
Siding Vinyl
Share property
Map

Loading maps...

Street View

Loading street view...